经典豪华套房海景
Classic Deluxe Suite with 4 single beds, Ocean/Sea view

太平洋和绿色交织的全景。缓慢的时间流逝和舒适的空间。

36㎡以上宽敞舒适的客厅和从客房看到的美丽大海景色,带来了四季的变化、风味、装点人生的发现和尚未见的感动相遇之旅。
灿烂的朝阳,请尽情享受极好的眺望。

客房图片|高知土佐美居温泉度假酒店
客房顶层。宽敞舒适的144 m2套房。最多可供4人使用
客房图片|高知土佐美居温泉度假酒店
客房顶层。宽敞舒适的144 m2套房。最多可供4人使用
广
144㎡
定员数
6名(包括2名同床的孩子)
床尺寸
1,200mm×2,100mm
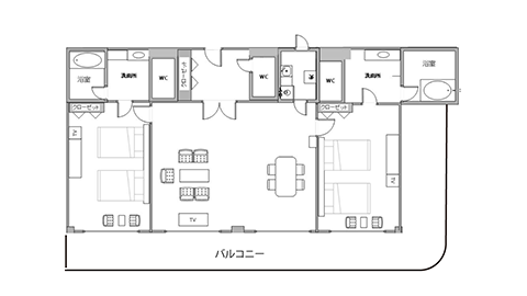
房间布局图|高知土佐美居温泉度假酒店
※实际的客房可能与房间布局图不同

客房设备

电视/羽绒被、羽枕/Wi-Fi连接/温水洗净座便器/冰箱(无内置)

客房设施

浴衣/大人用LL尺寸・大人用SS尺寸・儿童用M尺寸、儿童用S尺寸)/外褂/腰带/拖鞋(成人用・儿童用)/洗浴用品(洗发水・护发素・浴巾・洗手液/浴巾/毛巾/手套/茶杯/茶杯/茶杯/茶杯/茶杯/浴巾/茶杯
※只有和室镜台
※设施自助餐角(仅限美居):设施(牙刷、牙膏、梳子、棉布、胡须剃)

住宿预约
CLOSE
住宿预约
CHECK IN / CHECK OUT
GUESTS
大人
2
儿童
0
一个孩子的年龄
优待代码
搜索
优待代码
同时预订机票和租车服务 带交通的住宿预订